오산 세교2지구 A1블록 호반써밋 그랜빌 2차 청약일정, 분양가, 평면도, 분양정보, 모델하우스
출처 : 입주자 모집공고문
1. 오산 세교2지구 A1블록 호반써밋 그랜빌 2차 입지
- 공급위치 : 경기도 오산시 궐동 세교2지구 A1블록

2. 오산 세교2지구 A1블록 호반써밋 그랜빌 2차 조감도 및 배치도




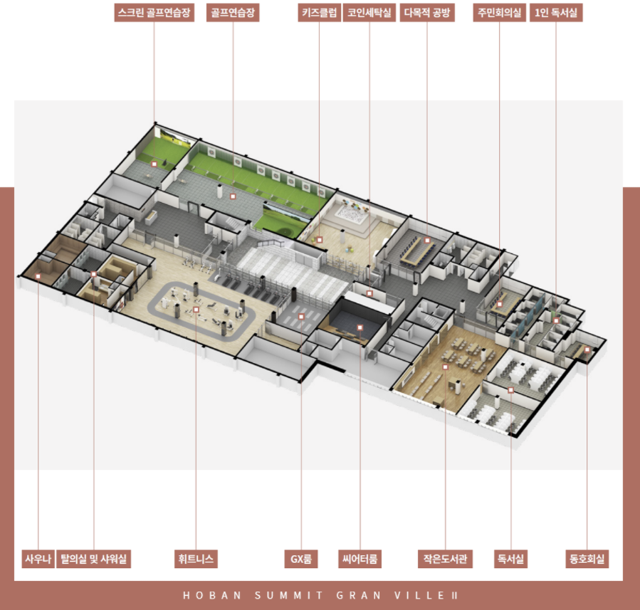
- 커뮤니티 시설

3. 오산 세교2지구 A1블록 호반써밋 그랜빌 2차 분양가 / 확장비 / 평면도
- 분양가
- 84A : 3억 7970만 ~ 4억 3150만
- 84B : 3억 6610만 ~ 4억 1600만
- 84C : 3억 5910만 ~ 4억 810만
- 111 : 4억 6780만 ~ 5억 3150만


- 발코니 확장비
- 84A : 226만
- 84B : 376만
- 84C : 406만
- 111 : 562만

- 평면도
- 84A

- 84B

- 84C

- 111

4. 오산 세교2지구 A1블록 호반써밋 그랜빌 2차 분양정보
- 분양일정
- 입주자 모집공고 : 1월 7일
- 특별공급 : 1월 17일
- 일반공급 : 1월 18 ~ 19일
- 당첨자발표 : 1월 25일
- 서류접수 : 1월 27일 ~ 2월 4일(1월 31일 ~ 2월 2일 제외)
- 계약체결 : 2월 7 ~ 11일

- 입주시기 : 2024년 03월 예정
- 공급규모 : 아파트 지하 2층, 지상 6~25층 14개동 총 897세대 및 부대복리시설
[특별공급 400세대 + 일반공급 497세대]

- 1순위 신청자격
- 입주자모집공고일 현재 오산시 또는 수도권(서울, 경기, 인천)에 거주하는 만19세 이상인 자 또는 세대주인 미성년자
- 무주택자 또는 1주택자
- 세대주
- 청약통장 가입 후 24개월 이상 + 예치금 기준 충족
- 과거 5년 이내 당첨이력 X
- 당해조건
오산시 1년 이상 거주자 : 30%
경기도 6개월 이상 거주자 : 20%
수도권(서울, 인천, 경기 6개월 미만) 거주자 : 50%
- 일반공급 가점제/추첨제 비율
전용면적 85㎡ 이하 : 가점제 75% + 추첨제 25%
전용면적 85㎡ 초과 : 가점제 30% + 추첨제 70%
- 전매제한
특별공급 : 6년
일반공급 : 6년
- 재당첨제한 10년
- 분양가상한제 적용. 거주의무 3년. 전세 불가능.
- 예치금

5. 오산 세교2지구 A1블록 호반써밋 그랜빌 2차 모델하우스 및 홈페이지
- 오산 세교2지구 A1블록 호반써밋 그랜빌 2차 모델하우스
경기도 오산시 세교동 560-1

- 오산 세교2지구 A1블록 호반써밋 그랜빌 2차 홈페이지
호반써밋 그랜빌Ⅱ
호반써밋 그랜빌Ⅱ 공식홈페이지입니다.
www.hobansummit-sg2.co.kr
'아파트 청약 > 수도권' 카테고리의 다른 글
| 안양 어반포레 자연앤 e편한세상 청약일정, 분양가, 평면도, 분양정보, 모델하우스 (0) | 2022.01.15 |
|---|---|
| 북서울자이 폴라리스 청약일정, 분양가, 평면도, 분양정보, 모델하우스 (0) | 2022.01.14 |
| 이천 센트레빌 레이크뷰 청약일정, 분양가, 평면도, 분양정보, 모델하우스 (0) | 2022.01.11 |
| 인천 검단신도시 AB20-2블록 중흥S클래스 사전청약 일정, 분양가, 평면도, 분양정보, 모델하우스 (0) | 2022.01.02 |
| 평택 고덕국제신도시 A-46BL 디에트르 사전청약 일정, 분양가, 평면도, 분양정보, 모델하우스 (0) | 2022.01.02 |
| 인천 검단신도시 AB20-1블록 제일풍경채 3차 사전청약 일정, 분양가, 평면도, 분양정보, 모델하우스 (0) | 2022.01.01 |
댓글