대전 도마변동 11구역 호반써밋 그랜드 센트럴 분양가, 평면도, 모델하우스, 분양정보
출처 : 입주자 모집공고문
대전 도마변동 11구역 호반써밋 그랜드 센트럴 입지
- 공급 위치 : 대전광역시 서구 도마동 145-8번지 일원

대전 도마변동 11구역 호반써밋 그랜드 센트럴 조감도 및 배치도





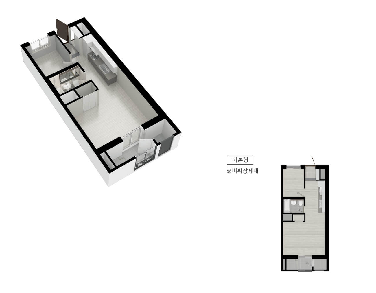
대전 도마변동 11구역 호반써밋 그랜드 센트럴 분양가 / 확장비 / 평면도
- 분양가
- 39 : 2억 2460만 ~ 2억 3640만
- 49 : 2억 8410만 ~ 2억 9900만
- 59 : 3억 6570만 ~ 3억 9320만
- 74A : 4억 4450만 ~ 4억 8290만
- 74B : 4억 2960만 ~ 4억 7010만
- 84 : 4억 9140만 ~ 5억 4810만


- 발코니 확장비
- 49 : 380만
- 59 : 1590만
- 74A : 1760만
- 74B : 1760만
- 84 : 2080만

- 평면도
- 39

- 49

- 59

- 74A

- 74B

- 84

대전 도마변동 11구역 호반써밋 그랜드 센트럴 분양정보
- 분양일정
- 입주자 모집공고일 : 2월 11일
- 특별공급 : 2월 21일
- 일반공급 : 2월 22 ~ 24일
- 당첨자 발표 : 3월 4일
- 서류 접수 : 3월 5 ~ 13일
- 정당 계약 : 3월 15 ~ 19일

- 입주 시기 : 2025년 01월 예정
- 공급 규모 : 공동주택(아파트) 지하 4층, 지상 35층 11개동 총 1,558세대 중 일반분양 1,017세대(조합원 437세대, 보류지 9세대, 임대 95세대 제외, 공동주택 주차대수 2,037대)
[특별공급 525세대 + 일반공급 492세대]

- 1순위 신청자격
- 최초 입주자 모집공고일(2022.02.11) 현재 대전광역시 또는 세종특별자치시 및 충청남도 지역에 거주하는 만 19세 이상인 자 또는 세대주인 미성년자
- 세대주일 것
- 2주택 이상을 소유한 세대에 속하지 않을 것
- 과거 5년 이내 당첨된 세대에 속하지 않을 것
- 청약통장에 가입하여 2년이 지난 자로서 예치기준금액을 납입 할 것
- 당해 조건 : 같은 순위 내에 경쟁이 있을 경우 해당 주택건설지역인 대전광역시 1년 이상 거주자가 우선.
- 1순위 가점제/추첨제 비율
전용면적 85㎡ 이하 : 가점제 100%
전용면적 85㎡ 초과 : 공급물량 없음.
- 투기과열지구 및 청약과열지역, 분양가상한제 미적용, 민영주택
- 재당첨 제한 10년
- 전매 제한
특별공급 : 5년
일반공급 : 소유권 이전등기일까지(5년을 초과하는 경우, 5년)
- 거주 의무 없음. 잔금시 전세 가능.
- 예치금

대전 도마변동 11구역 호반써밋 그랜드 센트럴 모델하우스 및 홈페이지
- 대전 도마변동 11구역 호반써밋 그랜드 센트럴 모델하우스

- 대전 도마변동 11구역 호반써밋 그랜드 센트럴 홈페이지
대전 도마 변동 호반써밋
대전 도마 변동 호반써밋 | 공식 홈페이지 | 분양정보
www.hobansummit-dmbd.co.kr
'아파트 청약 > 지방·광역시' 카테고리의 다른 글
| 더샵 노형포레 분양가, 평면도, 모델하우스, 분양정보 (0) | 2022.02.20 |
|---|---|
| 더샵 연동포레 분양가, 평면도, 모델하우스, 분양정보 (0) | 2022.02.20 |
| 내포신도시 모아미래도 메가시티 2차 분양가, 평면도, 모델하우스, 분양정보 (0) | 2022.02.13 |
| 포항자이 디오션 분양가, 평면도, 모델하우스, 분양정보 (0) | 2022.02.13 |
| 해링턴 플레이스 휴리움 분양가, 평면도, 모델하우스, 분양정보 (0) | 2022.02.13 |
| 도램마을13단지 중흥S-클래스 그린카운티 분양가, 평면도, 모델하우스, 분양정보 (0) | 2022.02.08 |
댓글