본문 바로가기
무순위 추첨

대전 도마변동 11구역 호반써밋 그랜드 센트럴 무순위(사후 1차) 분양정보

by jackrich 2022. 4. 9.
반응형

카톡방에 전국에 분양하는 아파트 단지들을 공유해드리고 있습니다.

관심 있으신 분들은 들어오세요.^^

 

참여코드 : bdjc2022


https://open.kakao.com/o/gqcvIE5d

 

잭리치 전국 청약정보 공유방

전국에 분양하는 모든 부동산

open.kakao.com

 

대전 도마변동 11구역 호반써밋 그랜드 센트럴 무순위(사후 1차) 분양정보

 

출처 : 입주자 모집공고문

2022910098 대전 도마·변동 11구역 호반써밋 그랜드 센트럴 무순위 입주자모집공고문.pdf
15.91MB

 

 

1. 대전 도마변동 11구역 호반써밋 그랜드 센트럴 입지

 

 - 공급 위치 : 대전광역시 서구 도마동 145-8번지 일원

 

 

2. 대전 도마변동 11구역 호반써밋 그랜드 센트럴 조감도 및 배치도

 

 

 

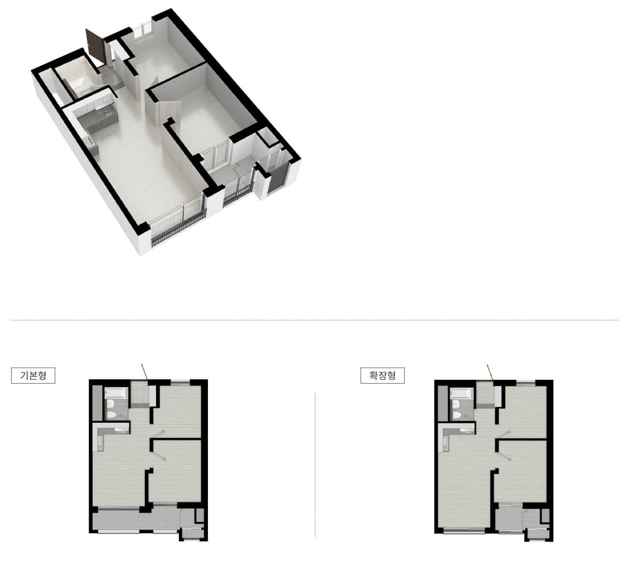
3. 대전 도마변동 11구역 호반써밋 그랜드 센트럴 분양가 / 확장비 / 평면도

 

 - 분양가

1) 39 : 2억 2460만 ~ 2억 3640만

2) 49 : 2억 8860만 ~ 2억 9900만

3) 59 : 3억 6570만 ~ 3억 9320만

 

 - 발코니 확장비

1) 39 

2) 49 : 380만

3) 59 : 1590만

 

 - 평면도

1) 39

 

2) 49

 

3) 59

 

 

4. 대전 도마변동 11구역 호반써밋 그랜드 센트럴 무순위(줍줍) 분양정보

 

출처 : https://jackrich.tistory.com/270

 

대전 도마변동 11구역 호반써밋 그랜드 센트럴 분양가, 평면도, 모델하우스, 분양정보

대전 도마변동 11구역 호반써밋 그랜드 센트럴 분양가, 평면도, 모델하우스, 분양정보 출처 : 입주자 모집공고문 대전 도마변동 11구역 호반써밋 그랜드 센트럴 입지  - 공급 위치 : 대전광역시

jackrich.tistory.com

 

 - 무순위(줍줍) 청약일정

1) 최초 입주자 모집공고일 : 2022년 2월 11일

2) 무순위 사후 모집공고일 : 4월 8일

3) 무순위 사후접수 : 4월 13일

4) 당첨자 발표 : 4월 18일

5) 서류 제출 : 4월 19 ~ 23일

6) 계약 체결 : 4월 24일

 

 - 입주 시기 : 2025년 01월 예정

 

 - 공급 규모 : 아파트 지하 4층, 지상 35층 11개동 총 1,017세대 정당계약 및 예비입주자 계약 이후 잔여물량 43세대

 

반응형

 

 - 무순위 신청자격

1) 입주자 모집공고일(2022.04.08) 현재 해당 주택건설지역(대전광역시)에 거주하는 무주택세대구성원 중 성년자

2) 청약통장 가입여부와 무관

3) 청약신청금 없음

 

 - 입주자 선정 시 경쟁이 있는 경우 주택형별 잔여세대수의 900%까지 무작위 추첨으로 예비입주자를 선정

 

 - 투기과열지구 및 청약과열지역, 분양가상한제 미적용, 민영주택

 

 - 재당첨 제한 10년

 

 - 전매 제한 : 소유권 이전등기일까지(5년을 초과하는 경우, 5년)

 

 - 거주 의무 없음. 잔금시 전세 가능.

 

 

5. 대전 도마변동 11구역 호반써밋 그랜드 센트럴 모델하우스 및 홈페이지

 

 - 대전 도마변동 11구역 호반써밋 그랜드 센트럴 모델하우스

대전광역시 서구 가수원동 1329번지

 

 - 대전 도마변동 11구역 호반써밋 그랜드 센트럴 홈페이지

 

대전 도마 변동 호반써밋

대전 도마 변동 호반써밋 | 공식 홈페이지 | 분양정보

www.hobansummit-dmbd.co.kr

 

반응형

댓글